--   |  设为首页

帮忙装修网

昆明

[切换]

正如俗话所说:"饭可以乱吃,墙不能乱拆“想拆墙打通阳台?劝你还是快住手吧!

来自:昆明帮忙装修网 日期:2018-01-08 13:59:37 8016 次 分享到:
导读:
房子装修的第一个步骤就是拆除工程,拆除墙体和门窗自然是其中最重要的部分。有些拆改能扩大屋内采光,或改变一些不合理的格局。但主体拆改也不是想拆就能拆的,今天昆明帮忙装修网就来说说拆除墙体和门窗需要注意哪些问题。

有些墙不能拆

1、承重墙不能拆大家都知道,承重墙承担着楼的重量,维持着整个房屋结构的力的平衡。所以这个禁忌是绝对不能碰的。

2、家居中的梁、柱不能拆改。梁柱是用来支撑整栋楼结构重量的,是屋子的核心骨架,如果随意拆改或改造就会影响整栋楼的安全。

3、墙体中的钢筋不能破坏。如果将钢筋破坏,就会影响房屋结构的承受力,留下安全隐患。

4、“砖混结构”房屋的预制板墙一律不能拆除,也不能开门开窗。特别是24㎝及以上厚度的砖墙,一般都属于承重墙。

5、阳台边的矮墙不能拆除。房间和阳台之间经常会设置一堵矮墙,业主都会想把它拆掉。一般来说,墙体上的门窗可以拆除,但是该墙体不能拆,因为它在结构上被称之为“配重墙”,起着稳定外挑阳台的作用,如果拆除,会使阳台承重力下降。

6、嵌在混凝土结构中的门框最好不要拆除。因为这样的门框已于混凝土结构合为一体,如果拆除或改造,就会破坏结构的安全性。

哪些墙可以拆

1、承重墙不能拆,那非承重墙就能拆了吧?许多人心里都有这样的疑问,但是有的非承重墙也承担着房屋的部分重量,厚一点,薄一点,都会有微妙的变化。

2、在家居中只起分隔空间作用的轻体墙、空心板可以拆。因为隔墙不承担任何压力,拆了也不会对房屋结构产生影响。

承重墙可以打孔吗

1、一般情况下,承重墙最好不要开孔,会破坏房屋结构,尤其是有梁的承重墙。

2、如果非要开孔,必须避开“元宝”钢筋(墙内的主钢筋),如果断了,会影响结构的安全!只要避开钢筋,在墙上开个小孔,做好相应的处理和修补,倒在可接受的范围。但必须要告知物业等相关部门。

门窗拆改需注意什么

1、房屋外轮廓上的门窗所在的墙一般属于结构承重墙,拆除这类门窗时,不可大范围进行破坏拆除,不能破坏墙体结构。

2、有些户型不太合理,很多门窗的设置会影响房屋布局和采光。这样的门窗可以拆除,但是门洞和窗洞所在的墙体不能动,但可以对其进行形式上的改造,比如将直角的门洞改成半圆或弧形的门洞,在原窗户的位置装上一个镂空架或透明的玻璃等,都可以进行视觉美化。

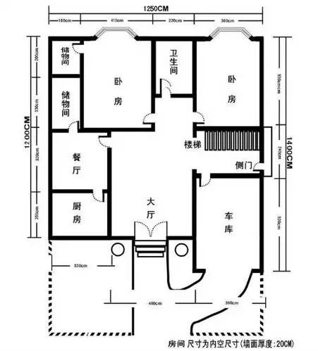
如何从图纸识别承重墙

1、从现行的建筑来看,240㎜及以上厚度的墙基本都是承重墙(高层、小高层)。

2、如图上的房屋结构平面图,黑色部分代表承重,非承重墙一般以虚线或细线表示,这是最稳妥的辨别方法。

昆明新房装修找靠谱的装修公司就上昆明帮忙装修网,免费获得三家本地优秀装修公司量房、设计、报价,对比之后再装修。